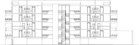
Housing in Buenos Aires, AR Built: (2015 - 2017) Area: 1050m2 Materials: Concrete, steel, aluminium
In this housing project, the reinforced concrete is understood as a maleable element which can cater for different shapes and uses, while having a strong visual identity. The long, terraced balconies create a buffer zone between the city and the apartments, and bring privacy and leisure outdoor space for the units.
Authors: Gramo (Nicolas Kitay) + BOU (Florencia Zylberman, Shirly Caplan, Marina Zilberman) + Ariel Kitay Collaborator: BARRO (Gonzalo Zylberman) Photographs: Albano Garcia






